Additional information
| Weight | 3.08 kg |
|---|---|
| Dimensions | 47 × 16 × 16 cm |
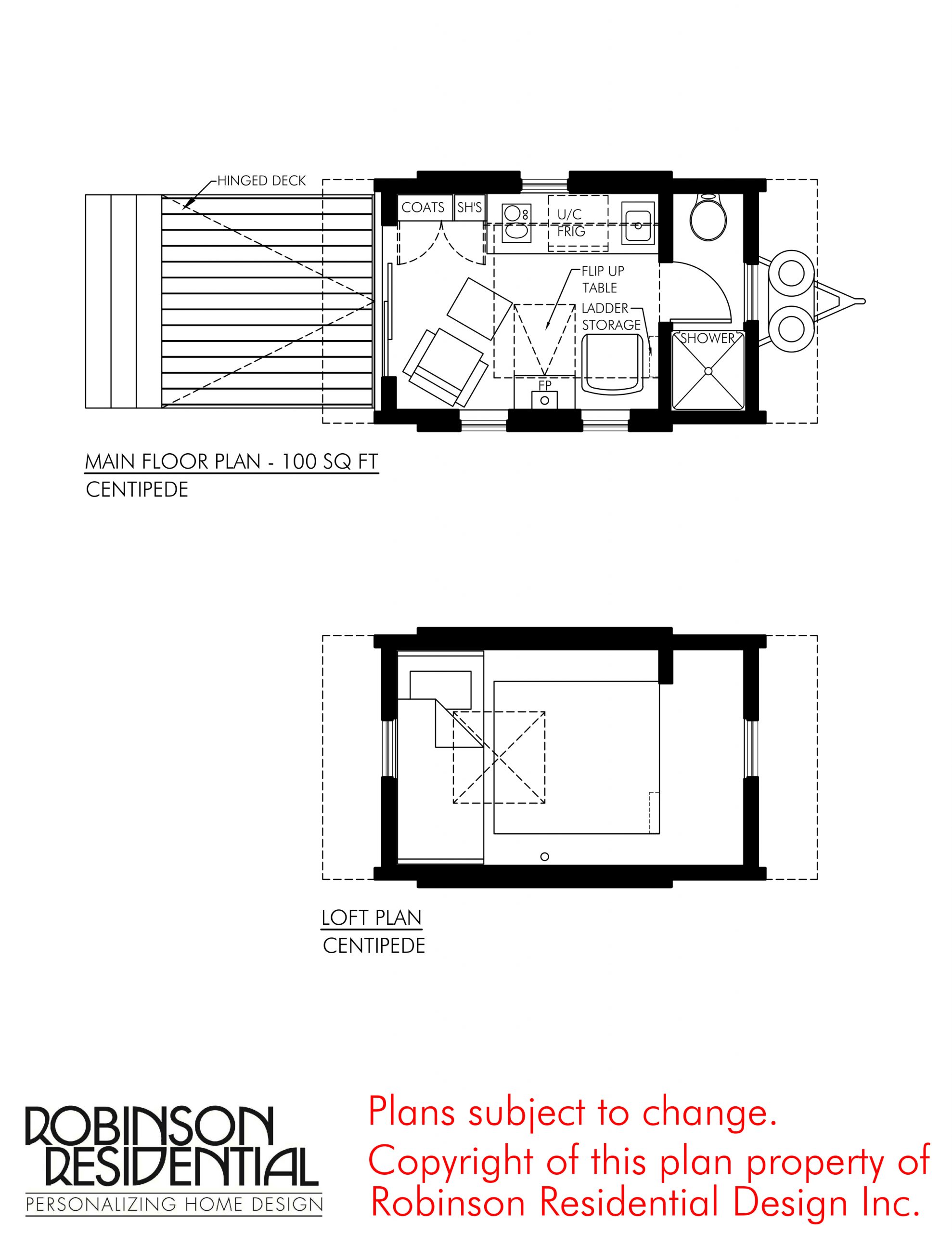
| Bed | 1 Bedroom |
| Bath | 1 Bathroom |
| Garage bays | 0 Garage Bays |
| Width | 08ft-4in |
| Storeys | 1 Storey |
| Square footage | 100 |
| Orientation | Standard |
| House type | Guest House, Small House, Tiny House/Small Home Plans |






Reviews
There are no reviews yet.