Additional information
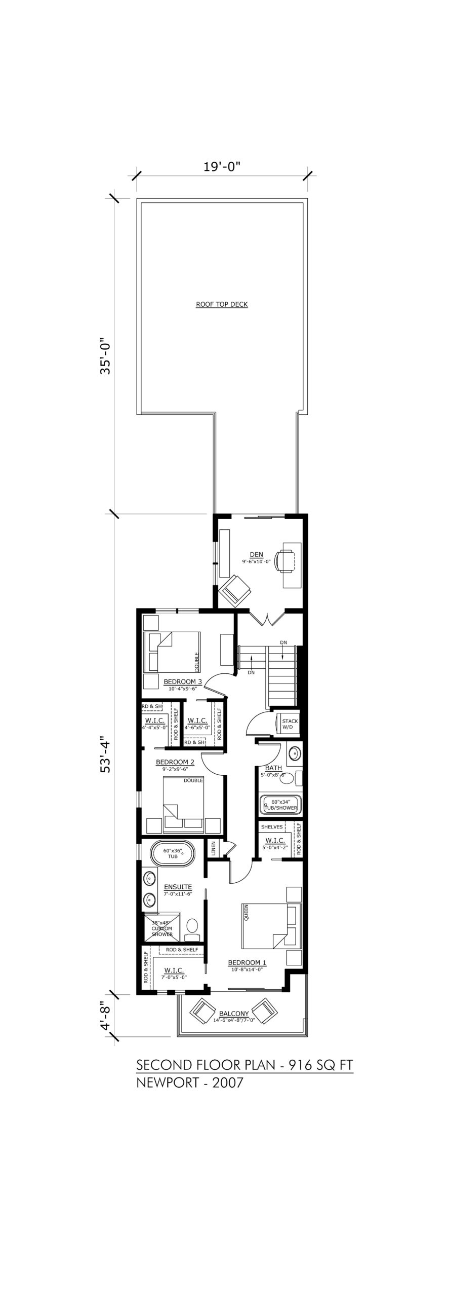
| Bath | 3 Bathrooms |
|---|---|
| Bed | 3 Bedrooms |
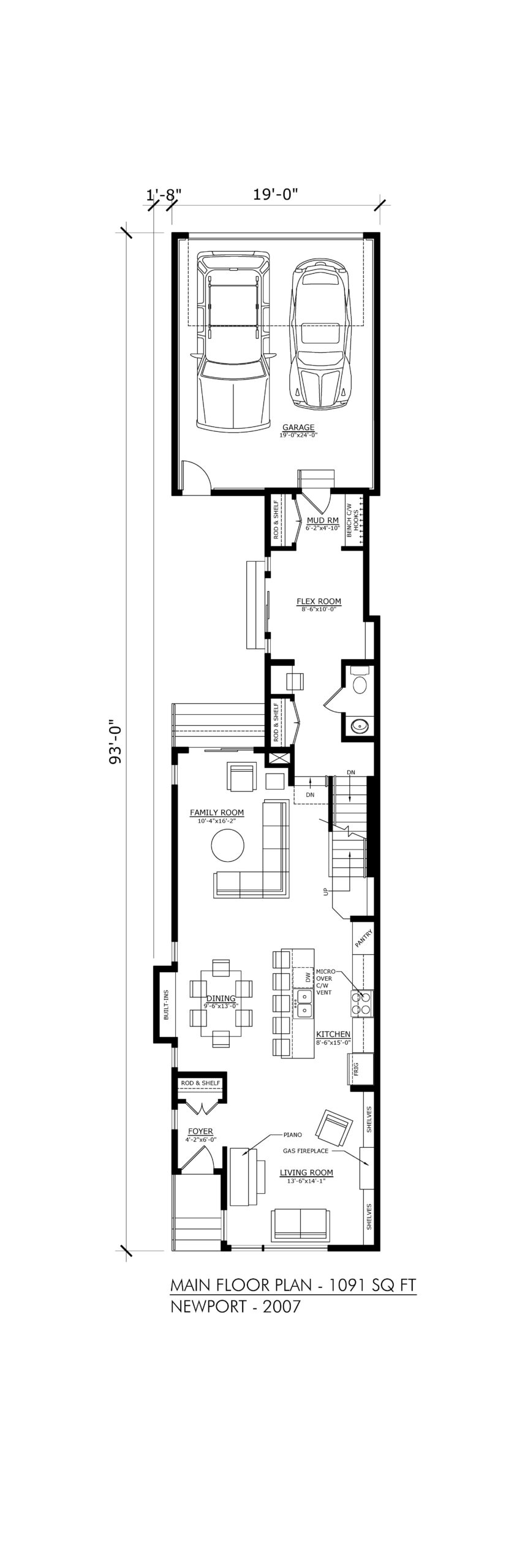
| Garage bays | 2 Garage Bays |
| Foundation | Basement |
| House type | 2-Storey |
| Orientation | Reverse (Additional $100), Standard |
| Width | 19ft-0in |
| Storeys | 2 Storey |
| Square footage | 1881 |








Reviews
There are no reviews yet.