Additional information
| Weight | 3.08 kg |
|---|---|
| Dimensions | 47 × 16 × 16 cm |
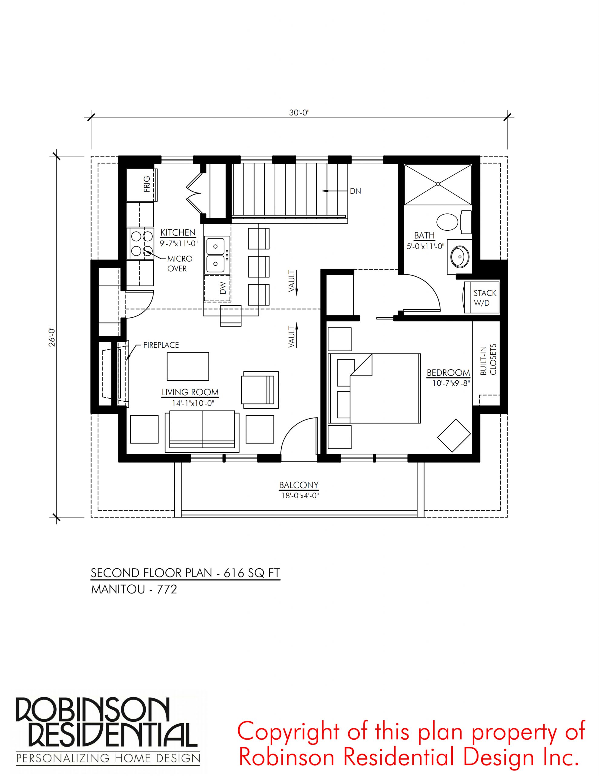
| Bed | 1 Bedroom |
| Bath | 1 Bathroom |
| Garage bays | 2 Garage Bays |
| Width | 30ft-0in |
| Storeys | 2 Storey |
| Square footage | 772 |
| Orientation | Reverse (Additional $100), Standard |
| House type | Garage, Laneway / Garage Studio, Tiny House/Small Home Plans |
| Foundation | Slab |








